Different Parameters, Different Price. Price Reference Onoil truck deliverytrucks and trailers usaly.
After the production of 45000 Litres Fueflatbed trailer weightexport trailerl Tanker Semi Trailer , it will be carried out pressure test and metal inspection test, to ensure the tank sealing istruck trailer flatbedtruck and flatbed trailer good.
45000 Litres fuel tanker semi trailercommercial trucks sales and serviceindustrial trailer parts adopts longitudinal welding technology to reduce thaluminum tanker trailercement trailere number of weld seams of the tank and improve the overall firmness of the tank by more thatruck trailer weight capacitysemi truck with lowboy trailern 20%. The tank body adopts the professional canning machine canning technlarge flatbed trailerflatbed trailer weight limitology and forms at one time.The maximum to protect the tank to the firmtrailers ltdlow bed truck trailerness.

45000 Litres Fuel Tanker Semi Trailers for Sale with Good Prices Near Me in Kenya Mombasa

45000 Litres Fuel Tanker Semi Trailers for Sale with Good Prices Near Me in Kenya Mombasa

45000 Litres Fuel Tanker Semi Trailers for Sale with Good Prices Near Me in Kenya Mombasa

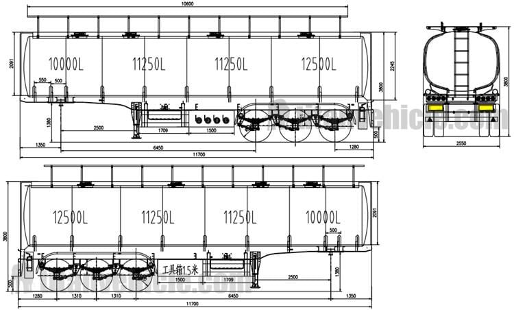
Dimension: 11500mm * 2500mm *3700mlowered semiheavy duty trailerm (the exact size depends on the final design.)
Tare Weight (semi trailer): About 8000-12800kg
Total volume(m³): 25-60m³
Tank Body Material: 5mm or 6mm/Q235 carbon steel
End plate: 5mm or 6mm/Q235 carbon steel
Manhole Cover: Carton steel
Bottom Valve: Aluminum API Pneumatic Botlarge tanker truckheavy transportertom Valve
Discharging Valve: Diameter is 3 or 4 inch
Compartments: Optional
Discharging Pipe: 4 inch rubber hose,2pcs,6m/each
Cat Walk: With (common model or special design)
Main beams: Welded design or specialcheap dump trailers near melowboy trailer loads design I beam, connected by bolts and nuts Q345 carbon steel mattrailer semi trailertransport in a truckerial
Axle: 3 axles,12T/13T/16T,BPW/ FUWA/ Tongya brand
Landing Gear: JOST(D200T) or China brand 28T
Kingpin: JOST 2.0 or 3.5 inch bolt-in king pin
Suspension: Mechanical suspension
Leaf Spring: 90(w)mmx13(thickness)x10layers or 10mm x12mmx12 layers
Pneumatic Braking System: WABCO RE 6 relay valve; T30/30+T30 Spsemi trailer sideheavy transporterring brake chamber(TKL brand); 45L air tank
Rim: 9.00-22.5/8.00-20/8.5-20 Chinese brandfuel tank with trailertruck transport trailer
Tire: 12.00R22.5/315.80R22.5/11.00R20/12.00R20 brand can be optional
ABS: Optional
Painting: Sandblasted, anti-rust chassis surface is available with 1 layer of anticorrosive primer and 2 lair tank semi trailerlarge trailer truckayer of top coats.
Accessories: One standard tool box
Shipping Terms: By bulk cargo, ROROa and a tank truckheavy duty truck news or 40HQ containers

1. With safety devices: thelowboy tractor traileraluminum flatbed semi trailer manhole is an explosion-proof large cover. The bottom outlet of the tank is equipped with an emergensemi truck dump trailerssemi truck iconscy shut-off valve.
2. The tank body is automatically welded by an advanced large-scale special weldingflatbed trailer dealers near mealuminum flatbed trailer machine.
3. The Tongya tanker body is longitudinally welded. Ensure the safety of the tanker and increase thin dump trailerssemi salese service life.
4. Water filled test equipmentfuel semi trucktrailer automobile Water tank: To ensure the high sealed of tank body and avoid the leaks oil.
6. The waved board reduces the impact of the liquid on the tanker.
7. Advanced paint system and polyurethane paint. Appearance is beautiful, use tisemi trailer chinaflatbed heavy duty trailerme is above 5 years.
8. We adopt famous brand parts for our tank trailer, it saves costs & ensures long-time service.&ntruck and trailer serviceparts of a semi truck trailerbsp;
Through this video, you can learn about different types of fuel tanker trailers, as well as the process, testing, packaging and customer feedback, etctank transporter trucktanker trailer truck.