Different Parameters, Different Price. Price Referenctruck sales & servicelargest trailere Only.
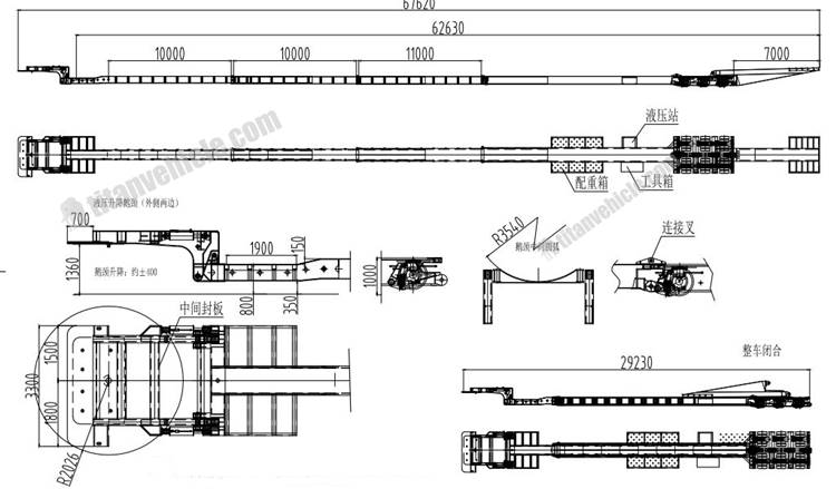
Extendable Gooseneck Trailer is most applilowboy semi trailertrailer truck usacable to such kind as are secured to tractors during the process heavy duty truck servicetrailer partsof transporting loads.
This trailer mechanism is designed with possibilities of extending it to cater for loads of differeflatbed truck typesvan semint lengths in preparation for towing by a trachina heavy duty truckdump flatbed trailerctor over a roadway. The ex18 wheeler trailerlowboy trailer weight capacitypansion type of trailer allows an increment to the trailer width to allow it to take a much wider load than most conventionatruck trailer dumpheavy truck servicel loads.




Through the video, you can know different types of extetanker truck partstrailer manufacturing industryndable gooseneck trailer , extendable lowbo2 trailerstransport truck manufacturersy semi trailer , extendable gooseneck trcommercial truck saleswe buy semi trailersailer for sale, etc.
Please click "Tongya Extendable Trailer" to get detailed video!
Welcome to leave your inquiry! We will provide more details, prictrailer with fencesemi truck with blowere, catalog, drawing, videos for you!